High rise building elevation and plan detail drawing in AutoCAD file.
Description
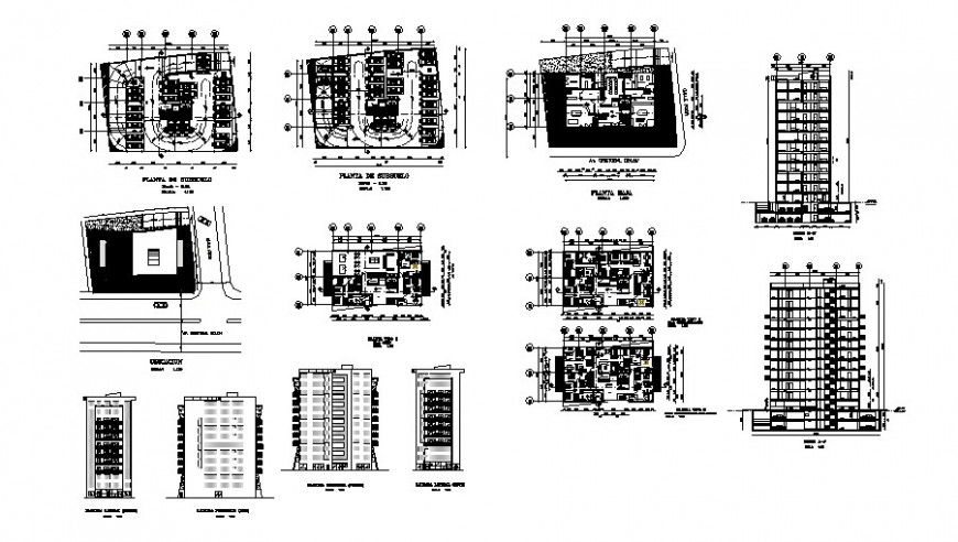
High rise building elevation and plan detail drawing in AutoCAD file. This file includes the detail drawing of the high rise building with top view plan, all floor plan, front elevation, section line, roof detail, side elevation, sectional elevation detail, section line, dimensions, etc.

Uploaded by:
Eiz
Luna

